設計コンセプト
障がい者向け施設
「障がい者総合支援法」 「児童福祉法」下の各施設、「入所」 「通所」など、さまざまな『タイプ』の施設に対応しています。
自然豊かな立地の中、施設ご利用者、ご家族、職員、地域の方々が、わくわくどきどき、そして癒しを感じることのできるゆったりとしたひだまりのような空間づくりを行いました。
- 空間として
- ①1F建物中央に位置する中庭
- ②2F南に面する屋上庭園
- ③3F多くの方が利用できる大ホール
- ④各個室および個室トイレなどの楽しい内装空間
- ⑤屋上パノラマゾーン
暮らす
「中庭」と「個室」
「中庭」を囲むように造られた居室空間は、ゆっくりとくつろぐことのできるプライベートエリアです。
「中庭」よりもたらされる光と風によって、ご利用者や来訪者が季節と開放感を味わうことができます。
感じる
「保育/児童プレイルーム」と「屋上庭園」
子どもたちが日常生活動作の自立と生活習慣の確立を目指し、日々楽しみながら成長するためのエリアです。
「屋上庭園」ではご家族が子どもたちとリラックスして過ごすことにより、その成長を感じることができます。
交わる
「大ホール」
季節のイベントや講演などを通じて、ご利用者とご家族、地域の方々が交流できるエリアです。
「大ホール」は「屋上庭園」にも通じており、同じイベントで屋内・屋外を利用しての交流が可能です。
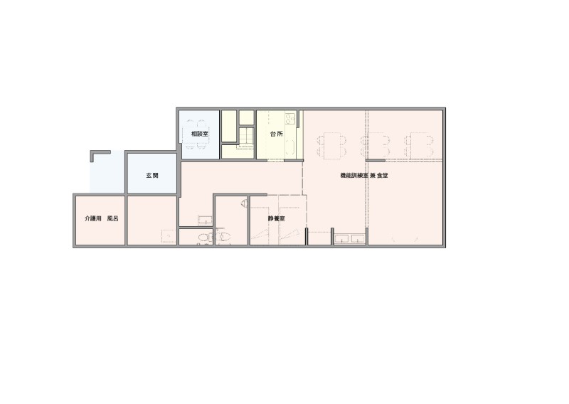
老人福祉施設
高齢者の心身の健康や生活の安全を図るための施設常時介護が必要な方、身の回りのことがある程度できる方、ショートステイ、デイサービスなど、それぞれのタイプごとユニットに分け「介護する人」 「介護される人」がそれぞれのペースで過ごせるように動線を考えプランしました。
グループホーム
認知症のある高齢者がスタッフの介助を受けながら少人数で共同生活を送る施設






